Tomko Woll Group Architects Inc devises spaces to meet clients’ needs - no criterion is too specialized

USC Makens Studio Wing

Los Angeles, CA

Client: University of Southern California, Roski School of Fine Arts

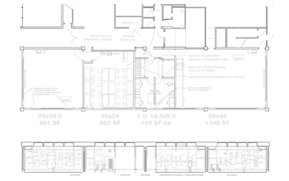
Renovation of an existing rabbit-warren of small makeshift studios to provide three teaching studios and ten faculty offices. The largest drawing studio is spacious with abundant light and extensive walls for group crits and student projects.

8563 Venice Boulevard Los Angeles CA 90034    ph 310 837 0115     fax 310 837 7540     info@tomkowoll.com