Tomko Woll Group Architects Inc devises spaces to meet clients’ needs - no criterion is too specialized

Caltech Sloan Research Lab (The Schwab Group)

Pasadena, CA

Client: California Institute of Technology ( 3,100 sf )

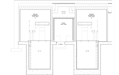
In its pursuit of discovering the point at which Newton’s Laws cease and quantum mechanics begin -- or possibly (gasp) overlap -- The Schwab Group, led by Prof. Keith Schwab, chose to focus on the behavior of nanoscale electro-mechanical structures at ultra-low temperatures. The experiments required Sloan Hall’s sub-basement to be dampened and renovated to provide two Rf shielded enclosures (chambers impervious to electromagnetic or radio frequency interference) and conventional laboratory benchtop units.

Each enclosure houses a vibration-isolating optical table supported by aluminum-encased columns filled with sand and lead bricks. Due to the site’s inaccessibility, the pits (ranging in depth from 6’-10’) had to be dug, manually. The project required above and beyond our usual painstaking attention to detail. In some cases, the fittings on highly-specialized equipment called for construction tolerances to be held to a largely unheard of 1/16 of an inch.

8563 Venice Boulevard Los Angeles CA 90034    ph 310 837 0115     fax 310 837 7540     info@tomkowoll.com